Eaton air conditioning disconnects (ACD) simplify installation and maintenance of air conditioning units. They provide multiple mounting options and enclosures with ample wiring space.
We offer the industry’s most complete line of ACDs. Devices are available in fused, non-fused, molded case switch or three-phase designs, and enclosures are constructed of durable galvanized steel or weather-resistant polycarbonate. Additionally, Eaton ACDs are rated NEMA 3R for their rainproof enclosures.
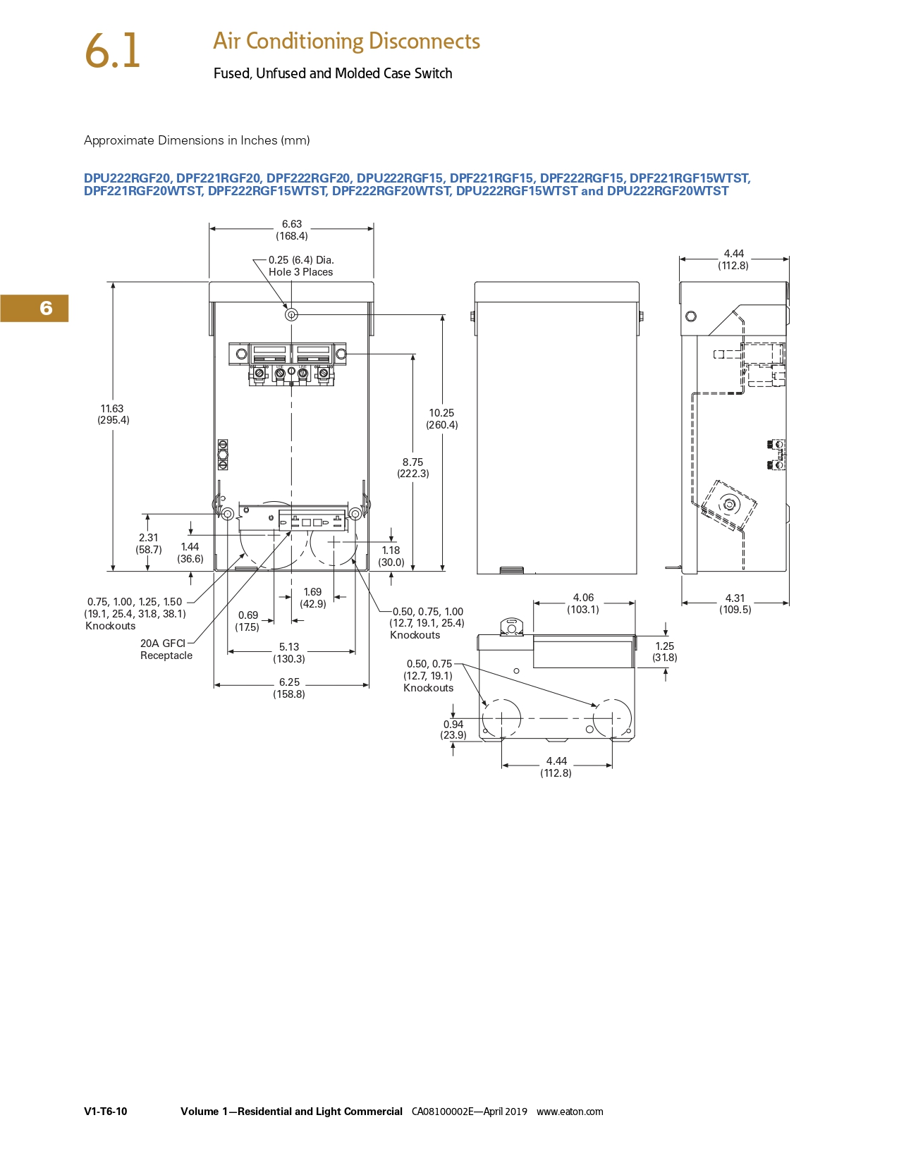
A removable front cover on the galvanized steel enclosures and a side-hinged door on the polycarbonate enclosures enable quick access to the disconnect.
Description


